Verkauft
- 27777 Ganderkesee
- Baujahr 1991
- Wohnfläche 161,0 m²
- Grundstück 867,0 m²
- Anzahl Zimmer 8
- Objektnummer ZD1154
Objektbeschreibung
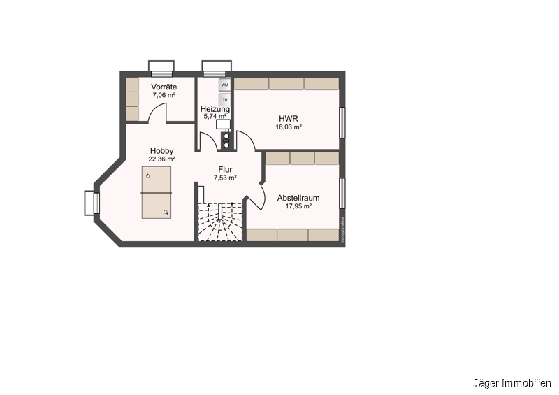
Im Erd- und Obergeschoss stehen Ihnen 6 Zimmer zur Verfügung. Zusätzlich bietet der Keller dank hoher Stehhöhen großes Potenzial für 3 weitere mögliche Zimmer, etwa als Hobby-, Gäste- oder Arbeitsbereich. Ein Duschbad im Erdgeschoss sowie das helle Bad im Obergeschoss mit Wanne und Dusche sorgen für hohen Wohnkomfort. Größtenteils vorhandene Rollläden runden die Ausstattung ab.
Ein besonderes Highlight ist der 2012 errichtete Wintergarten mit Fußbodenheizung, der den Wohnbereich auf attraktive Weise erweitert. Auch die überdachte Frühstücksterrasse, der Balkon im Obergeschoss sowie der großzügige Garten mit Gartenhütte laden zum Verweilen ein.
Das Haus wurde fortlaufend renoviert und modernisiert: 2014 Einbau einer neuen Heizung, 2018 Einbau einer hochwertigen neuen Einbauküche und 2020 Installation eines neuen Kaminofens. Weitere Ausbaureserve bietet der Spitzboden.
Ein Glasfaseranschluss ist im Haus vorhanden. Für die Gartenbewässerung ist ein Brunnen geschlagen worden.
Eine Garage sowie ein Carport und mehrere Stellplätze ergänzen dieses gepflegte Immobilienangebot ideal. Ein Haus mit viel Platz, solider Bauweise und schönem Ausblick – ideal für Familien oder alle, die großzügiges Wohnen in attraktiver Lage schätzen.
Lage
Ein weiterer Pluspunkt ist die gute Verkehrsanbindung: Der Bahnhof Bookholzberg bietet Anschluss an den schienengebundenen Nahverkehr; es bestehen gute Verbindungen in Richtung Bremen, Hude und Oldenburg. Damit ist der Standort auch für Berufspendler besonders interessant.
Die gute Erreichbarkeit der Städte Delmenhorst, Bremen und Oldenburg ergänzt die hohe Alltagstauglichkeit dieser Lage. Eine ideale Wohnlage für alle, die ruhiges und naturnahes Wohnen mit einer soliden Anbindung verbinden möchten.
Kontakt
- Firma
- Jäger Immobilien & Hausverwaltung
- Strasse
- Ulmenstr.
- Hausnummer
- 23
- Plz
- 27798
- Ort
- Hude
- Email Zentrale
- info@bremer-haus.de
- Telefon Zentrale
- 004944088715
- Fax
- 00494408809593
- Url
- http://www.bremer-haus.de
Ausstattung
| Heizungsart | Zentral |
| Befeuerung | Gas |
| Stellplatzart | Garage, Carport, Freiplatz |
| Bauweise | Massiv |
Fläche ca.
| Wohnfläche | 161,0 m² |
| Nutzfläche | 79,0 m² |
| Grundstücksfläche | 867,0 m² |
| Anzahl Zimmer | 8 |
| Anzahl Stellplätze | 4 |
Zustand
| Baujahr | 1991 |
| Zustand | GEPFLEGT |
| Letzte Modernisierung | 2014 - neue Gasheizung 2012 - neuer Wintergarten mit FBH 2018 - neue EBK 2020 - neuer Kaminofen |
Energiepass
- Energieausweistyp
- VERBRAUCH
- Gültig bis
- 16.04.2036
- Energiekennwert
- 107.50
- Energieträger
- GAS
- Energieeffizienzklasse
- D
- Baujahr
- 1991
- Jahrgang des Energieausweises
- 2014
- Gebäudeart
- wohn
Dokumente
Keine Dokumente vorhanden


































